149.000*€
Model Ai
Model Ai 12×4.3 – is an inspired balance of form and function on a houseboat with a truly distinct personality and the solid quality of engineering and construction.
Based on the Model XL of the 2021 model lineup.
Some of our partners can sell this type of houseboat under the following names:
Model LX, Model PL, Flying Dutchman, Bungalouboot, etc.
About „Model Ai“.
Ai – it means „Artificial Intelligence“. The houseboat is equipped with automatic user comfort systems, automatic charging, and an automatic heating system. Almost everything you’d expect from onboard automation for a reasonable price.
Ai – is „all-inclusive“. Everything you might need for running your leisure or/and business – a fully equipped business unit. Everything is included in the basic package: motor, heating, solar charging, furniture, beds, anchor, kitchen, etc.149.000*€

Design and wide view
Model Ai has the large double-glazzed panoramic windows, providing an unparalleled view of the nature. Optimized solar tinting and obstruction-free view creates unlimited visibility for all passengers.

Frame and Superstructure
The houseboat has a solid integrated aluminum frame.
The many isolated floats that lie in the base of the superstructure provide unprecedented stability and safety. The walls of the superstructure are builded with 50mm thick sandwich panels and additional 50 mm insulation (100mm insulation in total).


Water and Air heating
No LPG onboard now! Unprecedented safety!
To organize a comfortable climate inside the houseboat we use powerful benzine heater, liquid underfloor heating system (as option) and big boiler for hot water supply.
70l boiler heating with benzine heater is available on the way, also electric heating available when shore connection.
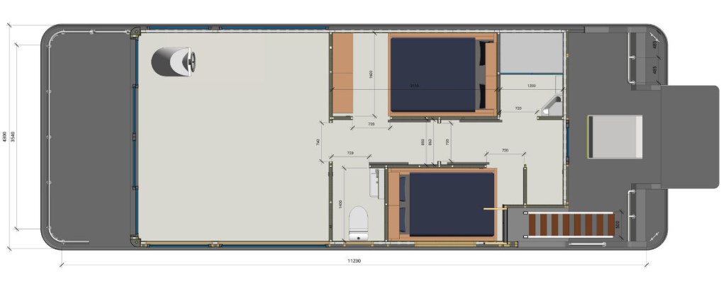
New layout.
Model Ai comes fully equipped with all sorts of amenities.
WC zone equipped with electic WC with mocerator, sink and shower tray.
The main zone will be equipped a foldable sofa (as a quests sleeping bed), kitchen furniture with two-burner electric hob, sink and fridge. All furniture items will based on the IKEA standard items.
Both bedrooms will be equipped with double sleeping bad, and hinged storage cabinets.
The front deck will be equip by ancker.
The rear deck will be equip by seeting places, folding swimming platform, low transome with Suzuki 15HP engine.
The main internal materials for walls and furniture: HPL plastic coated, synthetic leather/alcantara, textile
Floor cover material: vinyl plates, syntethic deck plates.
*Price
- The 21% VAT tax applies to above prices for buyers from Lithuania and to these buyers from other European Union countries who do not have the EU VAT tax number.
- Price indicating for EX-Works Palanga (Lithuania) terms and do not include VAT, which can be added on at the rate specified by the appropriate regulations.

What is included?
Technology
- Trimaran on the 26 pcx. PE-floats, 23 pcx. of them fills with special foam
- “D” category, max 12 persons
- CE-declaration of conformity
- ALU-platform with plywood
- Sliding front double-glazzed panoramic window
- Double-glazzed side windows
Onboard energy systems
- Suzuki 15HP engine
- Hydraulic steering system and steering console
- Fuel tank 95 l, level indicator
- 2x200Ah AGM batteries
- 7x260W solar panels with charge controller
- Inverter/charger 2400W (3000VA) with shore power charging
- Central power-off system
Comfort
- Combined liquid-electric water heater (electric heating of water available only when shore charging)
- Air heating systems 5kW
- Clear water tank 800 l with electric pump, level indicator
- Waste water tank 800 l with pump for waste water draining, level indicator
- Electric toilet with macerator
- Shower cabin
- Internal LED-lighting with dimmers
- Bedside lamps (5 pcx) with dimmers
- Navigation lights
- Rear view camera
- Front deck rails included
- Main internal materials for walls and furniture: synthetic leather, synthetic alcantara, textile
- Floor cover material: vinyl plates
Kitchen, bedrooms and areas
- kitchen corner furniture – IKEA
- bedrooms furniture – IKEA
- Two-burner induction stove
- Refrigerator
- 1-st bedroom: 1600mm bed, chest, 2 x shelf units
- 2-nd bedroom: 140mm bed, 2 x shelf units
- front deck – 6,8 m2
- living room – 16,6 m2
- 1st bedroom with coridor – 4.8 m2
- 2nd bedroom – 5,2 m2
- toilet room – 1,4 m2
- shower room – 1,95 m2
- rear deck – 8 m2
- sun deck – 26,7 m2
What is not included?
Additional options
- liquid underfloor heating systems – 1800€
- plisse-curtains for all windows – 1300€
- 40” Full HD TV sets + standard indoor UHF, VHF, DAB, DAB+, DVB-T, DVB-T2 antenna – 800€
- audio soundbar 2.1 (Stereo + Subwoofer) – 800€
- battery discharging monitor – 800€
- additional 200Ah AGM Deep Cycle battery – 800€ each
- Mercury 60HP engine – 6000€ (in addition to the basic price)
- bow or stern thruster with the battery KIT and separate charger – 6.500€
- bow + stern thrusters with the battery KITs and separate chargers – 11.500€
- stainless steel rails for the sundeck – 3500€ (foldable rails – 4500€)
- outdoor shower (on the rear deck) – 800€
- stainless steel telescopic foldaway ladder – 450€
Real photos











